Система возбуждения синхронных генераторов
СИСТЕМА ВОЗБУЖДЕНИЯ
СИНХРОННОГО ГЕНЕРАТОРА
Система возбуждения синхронного генератора, СВГ, предназначена для питания обмотки возбуждения турбогенератора, автоматически регулируемым постоянным током, в нормальных и аварийных режимах работы генератора.
Система возбуждения обеспечивает:
-
пуск, по одной команде с заданным алгоритмом и темпом нарастания напряжения генератора. На завершающем этапе пуска при поступлении на соответствующие входы напряжения пропорционального напряжению сети обеспечивается подгонка уставки напряжения турбогенератора к напряжению сети;
-
работу генератора в автономном режиме и в энергосистеме с нагрузками, от холостого хода до номинальной и с перегрузками, допускаемыми турбогенератором;
-
устойчивую работу турбогенератора в переходных и аварийных режимах, при сбросах и набросах нагрузки, режимах недовозбуждения допускаемых генератором по условиям устойчивости и нагрева;
-
форсировку возбуждения или развозбуждение при нарушениях в энергосистеме, вызывающих снижение или увеличение напряжения генератора;
-
гашение поля обмотки возбуждения генератора при нормальном останове генератора инвертированием через тиристоры, а в аварийных режимах генератора и отключением АГП;
-
автоматическое регулирование тока возбуждения турбогенератора с использованием пропорционально – интегрального (ПИ) закона регулирования по отклонению напряжения генератора и изменению реактивной составляющей тока статора и отклонению тока ротора;
-
дистанционное изменение уставки напряжения генератора в пределах от 80 до 110 % номинального значения;
-
ручное регулирование тока возбуждения в диапазоне от 0 % до 200 % (задается уставками);
-
ограничение тока возбуждения генератора двукратным значением по отношению к номинальному току, а также ограничение перегрузки по току ротора генератора по время-зависимой характеристике;
-
контроль перегрузки по току статора генератора по время-зависимой характеристике;
-
контроль и ограничение реактивной мощности генератора в зависимости от значения активной;
-
«подгонку» уставки напряжения турбогенератора к напряжению сети с точностью 0,3 % от установившегося напряжения сети;
-
точность поддержания напряжения на выводах турбогенератора в пределах 0,5 % от заданной статической характеристики;
-
постоянный контроль сопротивления изоляции цепей ротора;
-
начальное возбуждение генератора от сети постоянного напряжения 220 В. или 110 В.;
-
контроль токов фаз первичной обмотки питающего трансформатора.
УСТРОЙСТВО
Система возбуждения генератора состоит из следующих функциональных систем:
-
силовая схема;
-
автоматические регуляторы;
-
защиты;
-
система управления.
Силовая часть СВГ выполнена по схеме параллельного самовозбуждения с одним тиристорным преобразователем.
Схема выпрямления тиристорного преобразователя – нереверсивный трехфазный мост. Защита тиристоров от коммутационных перенапряжений осуществляется RC-цепочками, от внешних перенапряжений – варисторами. Защита при внутреннем коротком замыкании осуществляется герконовыми датчиками, воздействующими на отключение по независимому расцепителю входного автоматического выключателя. Защита тиристорного преобразователя и ротора от перенапряжений осуществляется тиристорным разрядником.
Управление тиристорным преобразователем, защита и сигнализация, автоматическое регулирование возбуждения осуществляется системой управления.
Автоматический регулятор возбуждения системы управления обеспечивает поддержание напряжения на выходе генератора с заданной точностью при изменении нагрузки в статических и переходных режимах. Функционально регулятор представляет собой систему подчиненного регулирования, в которой выходной сигнал одного контура регулирования является входным для последующего и включает в себя устройство ограничения задания напряжения генератора в пределах от 0,8 до 1,1 Uн, задатчик интенсивности, регуляторы напряжения и тока возбуждения генератора. Регуляторы тока и напряжения генератора – пропорционально-интегральные.
Все задачи системы управления (далее СУ) выполняются программно-аппаратным способом. Выходными сигналами системы управления являются, регулируемые по фазе, управляющие импульсы тиристорного преобразователя.
Кроме этого системой управления выполняются: индикация режимов работы и причин аварийных отключений, а также формирование сигналов для устройств Заказчика.
Выходные сигналы формируются в функции внешних заданий и величин выходных параметров системы возбуждения.
СУ представляет собой набор устройств и печатных плат - основных и периферийных. К основным печатным платам относятся - плата управления, плата выходных каскадов и пультовой терминал с дисплеем. К периферийным платам относятся датчик выходного тока и датчик выходного напряжения, плата дискретного ввода, датчики входного тока и др.
Плата управления является вычислительным устройством. В ней размещены все основные устройства вычислительной системы - ПЗУ, ППЗУ, ОЗУ, микро-ЭВМ. Программно-аппаратные средства платы обеспечивают также связь с пультовым терминалом и ПЭВМ верхнего уровня по интерфейсной связи. С измерительным и коммутационным комплексами генератора связь платы управления осуществляется через периферийные платы. В запоминающих устройствах платы управления размещаются рабочие и сервисные программы СВГ и наладочные «уставки» системы управления.
Управляющие импульсы преобразователя главных цепей формируются непосредственно в плате управления. В плате выходных каскадов производится их усиление и распределение по тиристорам.
В плате также формируются сигналы, отключающие выключатели при авариях.
Плата дискретного ввода обеспечивает связь СУ с аппаратами силовой части изделия и клеммниками для цепей Заказчика.
ЗАЩИТЫ
В системе возбуждения реализованы следующие каналы защит и ограничений:
-
ограничение тока возбуждения;
-
контроль наличия тока возбуждения;
-
контроль и ограничение реактивной мощности генератора;
-
защита генератора от превышения напряжения статора выше 1,2Uн;
-
защита генератора от насыщения магнитной системы при снижении частоты напряжения генератора;
-
защита тиристорных преобразователей при внешнем и внутреннем коротких замыканиях;
-
защита тиристорного преобразователя и ротора генератора от перенапряжений;
-
контроль изоляции цепей ротора;
-
форсировка возбуждения генератора при снижении напряжения генератора ниже 0,8Uн.
НОМИНАЛЬНЫЕ ВЫХОДНЫЕ И ВХОДНЫЕ ПАРАМЕТРЫ
Номинальный выходной ток в пределах от 50 до 4000 А.
Номинальное выходное напряжение в пределах от 25 до 800 В.
Номинальное входное питающее напряжение в пределах от 220 до 10000 В.
СТРУКТУРА УСЛОВНОГО ОБОЗНАЧЕНИЯ

ОСНОВНЫЕ ТЕХНИЧЕСКИЕ ДАННЫЕ
Основные технические данные приведены в таблице 1.
Таблица 1. Основные технические данные СВГ
| Наименование параметра | Значение |
| 1. Частота входного напряжения, Гц. | 50 ± 2 % |
| 2. Кратность форсировки по току, о.е. | 2,0 |
| 3. Кратность форсировки по напряжению, о.е. | 2,0 |
| 4. Длительность максимальной форсировки, не более, сек. | 60 |
| 5. Диапазон регулирования выходного напряжения, о.е. | 0,06…2,0 Uн |
| 6. Напряжения питания собственных нужд однофазное, В. | 220+10/-15 % |
| 7. Оперативное напряжение постоянного тока, В | 220 или 110 (+10 /-15 %) |
| 8. Коэффициент полезного действия, не менее | 0,95 |
| 9. Коэффициент нелинейных искажений сетевого тока не более | 5% |
| 10. Степень защиты | IP21…IP 54 (по заказу) |
| 11. Срок службы не менее, лет | 15 |
| 12. Среднее время восстановления не более, мин. | 40 |
| 13.Помехоустойчивость | удовлетворяет всем требованиям стандартов |
| 14. Допустимое отклонение частоты напряжения генератора длительно, Гц | +2/-3 |
УСЛОВИЯ ОКРУЖАЮЩЕЙ СРЕДЫ
Таблица 2. Условия окружающей среды| Наименование параметра | Значение |
| 1. Высота размещения над уровнем моря | до 1000 м |
| 2. Диапазон рабочих температур | +1°С …+40°С |
| 3. Диапазон температур хранения | -40°С …+60°С |
| 4. Верхнее значение относительной влажности при 35 °С | 80% |
| 5. Окружающая среда | Взрывобезопасная, не содержащая химически активные газы и пары в концентрациях, разрушающих изоляцию. |
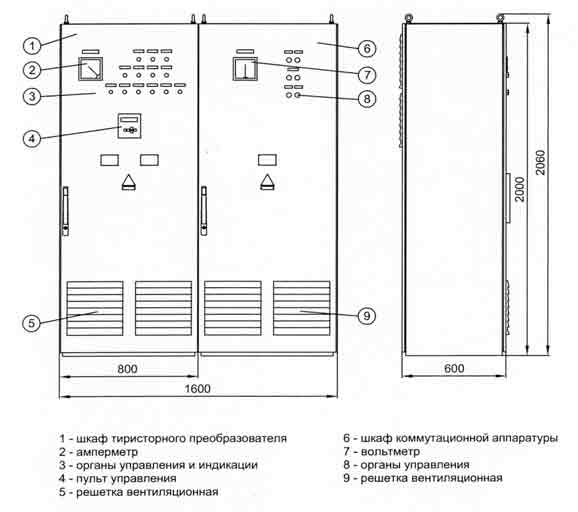
ОБЩИЕ СВЕДЕНИЯ О КОНСТРУКЦИИ
Конструктивно система возбуждения выполнена в виде двух шкафов, с двухсторонним обслуживанием – шкафа преобразователя, шкафа с коммутационной аппаратурой и согласующего сухого трансформатора.
В шкафу преобразователя расположен тиристорный преобразователь, система управления, защиты и сигнализации, входные автоматические выключатели основных и вспомогательных цепей, источники питания, вспомогательные трансформаторы, элементы защиты тиристоров, входные клеммники. Охлаждение тиристоров – естественное или принудительное воздушное.
В шкафу с коммутационной аппаратурой расположены: автомат гашения поля, элементы устройства начального возбуждения, контактор и резисторы самосинхронизации, тиристорный разрядник, силовые контакторы постоянного тока, клеммник внешних подключений.
Подвод кабелей внешних подключений осуществляется снизу, через отверстия в днищах шкафов, уплотненные гермовводами. Для крепления кабелей предусмотрены скобы.
ТИПОВЫЙ ГАБАРИТНЫЙ ЧЕРТЕЖ

Загрузить документы
Возбудители электрических машин (0.941
Мб) скачать
Главная
Карта сайта

