Зарядно-выпрямительные устройства

ЗАРЯДНО-ВЫПРЯМИТЕЛЬНОЕ УСТРОЙСТВО ВТЕУ
Зарядно-выпрямительное устройство УБП и ВТЕУ предназначено для преобразования переменного тока в регулируемый постоянный ток для заряда аккумуляторных батарей и питания потребителей постоянным напряжением как в буферном включении с аккумуляторной батареей, так и непосредственно.
УБП разработаны и изготавливаются на номинальные выходные напряжения 30; 60; 110 и 220В, номинальные токи 5; 10А. Питающее напряжение переменное однофазное 220 В, 50 (60) Гц.
УБП реализован по принципу импульсного преобразователя-стабилизатора с высокой частотой модуляции.
ВТЕУ разработаны и изготавливаются на номинальные выходные напряжения 30; 60; 110; 230; 320 и 440 В. На номинальные токи 10; 25; 50; 100; 150 А. Регулировка выходного напряжения плавная от 5% номинального до 110% номинального. Питающее напряжение переменное однофазное 220 В или трехфазное 380 В, 50 (60) Гц.
УБП и ВТЕУ обеспечивают IU-характеристику выходного напряжения в соответствии с DIN41773 при работе с аккумуляторными батареями.
Отклонения выходного тока в режиме стабилизации выходного тока не превышают ± 1 % от величины уставки выходного тока при допустимых отклонениях напряжения питающей сети. Отклонения выходного напряжения в режиме стабилизации выходного напряжения не превышают ± 1 % от величины уставки выходного напряжения при допустимых отклонениях напряжения питающей сети.
Коэффициент пульсаций выходного напряжения не более 0,08 без емкостного фильтра на выходе и не более 0,04 при установленном емкостном фильтре при работе на активную нагрузку, номинальном выходном токе и номинальном выходном напряжении.
ВТЕУ (далее «Выпрямитель») обеспечивает параллельную работу с аналогичными вы¬прямителями на общую нагрузку. Динамически и термически устойчив к токам внут¬ренних и внешних коротких замыканий.
ПРЕИМУЩЕСТВА ИСПОЛЬЗОВАНИЯ ВЫПРЯМИТЕЛЯ
-
повышенная надежность выпрямителя благодаря микропроцессорной системе управления и гальванической развязке от питающей сети;
-
обеспечение нескольких режимов работы и нескольких логик управления;
-
автоматическая подача напряжения на нагрузку по заданным параметрам при пуске, работе и переключении выпрямителя;
-
наличие сервисных программ по наладке, ремонту и контролю параметров выпрямителя;
-
полный контроль параметров и защита выпрямителя и нагрузки во всех реальных аварийных режимах.
УСТРОЙСТВО ВЫПРЯМИТЕЛЯ ТИПА ВТЕУ1-100/230-УХЛ4
Выпрямитель ВТЕУ1-100/230-УХЛ4 состоит из следующих функциональных систем:
-
силовой схемы;;
-
системы защит;
-
системы управления, индикации и сигнализации.
Силовая часть в своем составе содержит устройство ввода, согласующий и развязывающий входной трансформатор, вторичные обмотки которого имеют отводы на два разных напряжения, контакторы, подключающие необходимые обмотки в зависимости от режима работы, выпрямительный тиристорный мост, LC-фильтр. Питание выпрямителя осуществляется от сети переменного тока напряжением 380 В, частотой 50 Гц.
Каждый тиристорный модуль установлен на индивидуальный охладитель. Для контроля теплового режима на каждом охладителе установлен термодатчик.
В выпрямителе предусмотрено ряд защит, отключающих выпрямитель при возникновении аварийных ситуаций, как в нагрузке, так и в выпрямителе:
-
защита от внутренних и внешних коротких замыканий;
-
защита от короткого замыкания в силовом трансформаторе;
-
защита при исчезновении тока заряда;
-
защита по максимально допустимому выходному напряжению;
-
перегрев силовых тиристоров;
-
неправильное подключение аккумуляторной батареи;
-
неправильное чередование фаз входного напряжения;
-
защиту при просадке или пропадании входного силового напряжения, а также повторное включение выпрямителя при восстановлении сети;
-
ряд защит по контролю состояния отдельных элементов системы управления;
-
защиту при неисправностях в системе питания выпрямителя.
Микропроцессорная система управления выпрямителя обеспечивает:
-
задание необходимого режима работы, параметров и т.п. от кнопок пультового терминала и ручек (кнопок) на двери шкафа с контролем вводимых величин на его дисплее ( 2-х строчный 16-ти разрядный ЖКИ);
-
обработку входных аналоговых, дискретных сигналов и формирование импульсов управления силовыми ключами выпрямителя, а также формирование ряда сигналов типа «сухой» контакт для цепей защиты и индикации Заказчика;
-
автоматическую подачу напряжения на нагрузку при пуске, работе и останове выпрямителя в соответствии с заданными параметрами;
-
связь по последовательному интерфейсу CAN с системой верхнего уровня;
-
сервисные режимы работы для наладки, ремонта и контроля систем выпрямителя.
Все задачи системы управления выполняются программно – аппаратным способом.
Задания на амплитуду выходного тока и напряжения в систему управления задается от кнопок терминала пультового или соответствующих переключателей на двери шкафа с контролем по дисплею.
На двери шкафа расположены измерительные приборы – вольтметр и амперметр, для измерения выходного напряжения и тока выпрямителя.
Выпрямитель имеет систему контроля сопротивления изоляции выходных шин «+» и « - » относительно «земли».
РЕЖИМЫ РАБОТЫ
Режим работы выпрямителя по величине выходных параметров задается от переключателя «Режим работы», установленного на двери шкафа. Можно задать два режима работы выпрямителя:
-
«Подзаряд»;
-
«Дозаряд».
Уставка по напряжению может регулироваться в пределах от 0,7 до 1,3 номинального выходного напряжения данного режима.
Уставка по току нагрузки может регулироваться в пределах от 0,05 номинального до 1,1 номинального выходного тока.
Сервисные режимы задаются от кнопок пультового терминала.
СТРУКТУРА УСЛОВНОГО ОБОЗНАЧЕНИЯ ВТЕУ

ОБЩИЕ СВЕДЕНИЯ О КОНСТРУКЦИИ
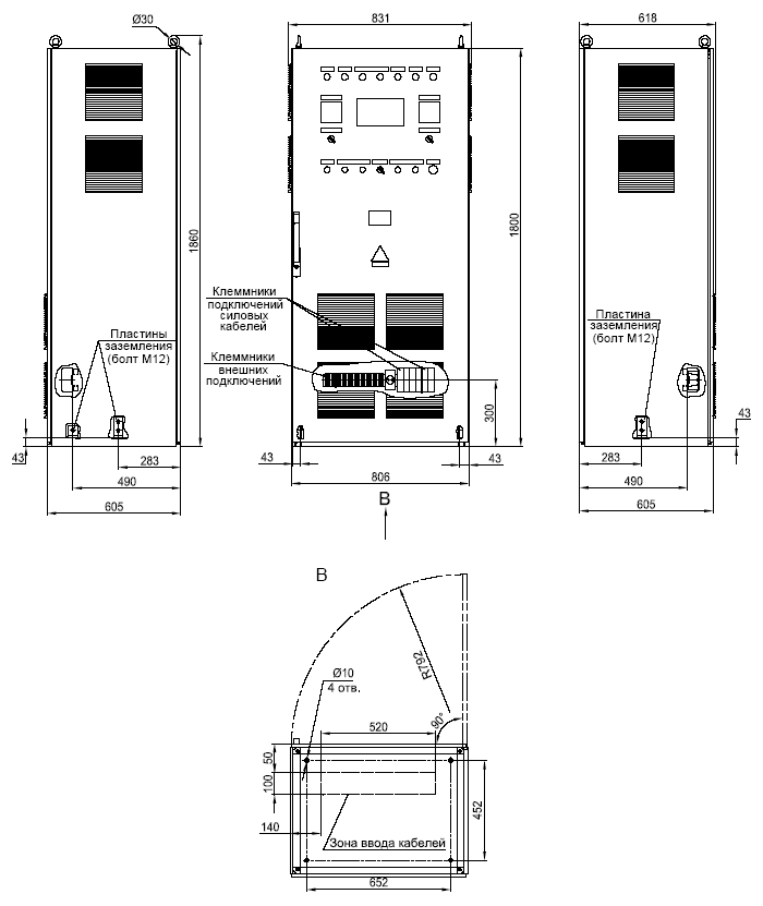
Конструктивно выпрямитель выполнен в виде шкафа из листовой стали с двухсторонним обслуживанием, со степенью защиты не ниже IP43 в соответствии с ГОСТ 14254-96. На передней двери шкафа расположены органы управления, в том числе терминал пультовый, измерительные приборы и лампы сигнализации.
Охлаждение силовых модулей воздушное естественное. Силовой понижающий трансформатор установлен внутри шкафа. Сглаживающий фильтр установлен на выходе выпрямителя.
Подвод кабелей внешних подключений осуществляется через отверстия в днище шкафа, уплотненными гермовводами.
ОСНОВНЫЕ ТЕХНИЧЕСКИЕ ДАННЫЕ ВТЕУ1-100/230-УХЛ4
Таблица 1. Основные техничские данные ВТЕУ-100/230-УХЛ4|
Наименование параметров |
Значение |
|
| 1. Номинальное входное напряжение, В |
380+15 %, -20 % |
|
| 2. Частота, Гц |
50±1 |
|
| 3. Количество фаз |
3 |
|
| 4. Количество вводов |
1 |
|
| 5. Режим работы |
продолжительный |
|
| 6. Выход постоянного тока |
Подзаряд |
Дозаряд |
| 6.1. Номинальное выпрямленное напряжение, В | 230 | 320 |
| 6.2. Номинальный выпрямленный ток, А | 100 | 100 |
| 6.3. Диапазон регулирования выходного напряжения, В | 0-260 | 0-360 |
| 6.4. Коэффициент мощности, не менее (при номинальных параметрах) | 0,9 | 0,9 |
| 6.5. Коэффициент полезного действия, не менее (при номинальных параметрах) | 0,94 | 0,94 |
| 7. Габаритные размеры (Ш х В х Г), мм, не более | 800х1800х600 | |
| 8. Масса (не более), кг | 700 | |
УСЛОВИЯ ОКРУЖАЮЩЕЙ СРЕДЫ
Таблица 2. Условия окружающей среды
|
Наименование параметра |
Значение |
| 1. Высота размещения над уровнем моря | до 1000 м |
| 2. Диапазон рабочих температур | 0 °С …+40 °С |
| 3. Диапазон температур хранения | -40 °С …+60 °С |
| 4. Верхнее значение относительной влажности при 25 °С | 90 % |
| 5. Окружающая среда | Взрывобезопасная, не содержащая химически активные газы и пары в концентрациях, разрушающих изоляцию. |
ГАБАРИТНЫЙ ЧЕРТЕЖ ВТЕУ1-100/230-УХЛ4 
Загрузить документы
Зарядно-выпрямительные устройства ВТЕУ (0.952
Мб) скачать
Главная
Карта сайта

