КРУ 10(6) кВ серии NEX

Распределительные устройства среднего напряжения NEX 10(6) кВ
Распределительные устройства среднего напряжения NEX 10(6) кВ производятся ЗАО «ЭТК «Плутон» по лицензии компании Schneider Electric.
Области применения
Энергетика и инфраструктура:
- Объекты электроэнергетики (производство и распределение энергии)
- Аэропорты
- Объекты водоснабжения
- Офисы
- Отели
- Больницы
Промышленность:
- Автомобильная промышленность
- Горнодобывающая промышленность
- Нефтегазодобывающая промышленность
- Химическая промышленность
- Цементные заводы
- Металлургия
- Предприятия питания
Транспорт:
Тяговые подстанции, понизительные подстанции городского электрического транспорта, метрополитена и железной дороги.
Конструкция
Ячейка серии NEX соответствует требованиям ГОСТ 14693-90 и стандарту МЭК 60298.
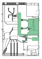
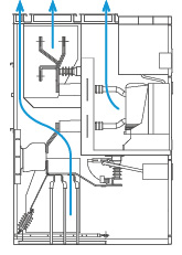
Ячейка состоит из 4 отсеков, разделенных между собой металлическими перегородками:
-
Отсек релейной защиты и автоматики. В отсеке расположены устройство защиты Sepam или MiCom (по требованию Заказчика), приборы контроля и учета электроэнергии, клеммные ряды и другая аппаратура вспомогательных цепей;
-
Отсек коммутационного аппарата. В отсеке, помимо выкатного элемента с вакуумным выключателем (тележки с разъединителем или заземляющим разъединителем), расположены подвижные металлические шторки, которые автоматически закрываются при перемещении выключателя/разъединителя/заземляющего разъединителя из рабочего положения в контрольное;
-
Кабельный отсек. В отсеке расположены кабельные вводы, заземляющий разъединитель, модуль системы индикации наличия напряжения, трансформаторы тока, трансформаторы напряжения;
-
Отсек сборных шин. В отсеке расположены медные шины, проходные изоляторы. Каждый отсек (кроме отсека релейной защиты) имеет свой канал отвода газов.

| Состав ячейки | Блокировки | Безопасность |
![]() |
![]() |
![]() |
|
В состав ячейки входят: - вакуумный выключатель выкатного исполнения; - кассета с металлическими защитными шторками и специальными вводами; - заземляющий разъединитель; - цепи управления и сигнализации между отсеком релейной защиты и управления и вспомогательным оборудованием выключателя. |
Встроенные в ячейку блокировки предотвращают ошибочные действия персонала. - доступа к кабельному отсеку; - вкатывания и выкатывания выкатных элементов; - включения заземляющего разъединителя; - открывания двери отсека выключателя. |
Базовый вариант исполнения ячейки включает каналы отвода газов через клапаны сброса давления.Каждый отсек имеет свой канал отвода газов. |
Технические характеристики
|
Наименование параметра |
Ед.изм. |
Значение |
|
|
Номинальное рабочее напряжение |
кВ |
6 |
10 |
|
Наибольшее рабочее напряжение |
кВ |
7,2 |
12 |
|
Выдерживаемое напряжение промышленной частоты 50 Гц в течение 1 мин |
кВ |
32 |
42 |
|
Импульсное значение 1,2/50 мкс |
кВ |
60 |
75 |
|
Ток термической стойкости |
кА/3 сек |
25 |
|
|
Ток электродинамической стойкости |
кА |
62,5 |
|
|
Номинальный ток сборных шин |
A |
1250 |
|
|
Номинальный ток главных цепей |
A |
630 |
|
|
Стойкость к внутренней дуге (дополнительно)IAC-AFLR |
кA/0,5 сек |
25 |
|
Основные типы ячеек
|
Ячейка вводной и отходящей линии
|
Ячейка секционного выключателя
|
Ячейка трансформаторов напряжения
|
Ячейка с трансформатором собственных нужд
|
![]() |
![]() |
|
![]() |
В КРУ NEX применены наиболее эффективные средства управления и защиты, благодаря чему ячейки NEX могут быть легко интегрированы в систему автоматизированного управления подстанций.
Устройства релейной защиты и управления Sepam
Цифровые устройства релейной защиты Sepam серий 20, 40, 80 спроектированы с учетом мирового опыта в области защиты электрических сетей.
Устройства Sepam серий 20, 40 и 80 выполняют все необходимые функции:
-
эффективная защита оборудования и персонала;
-
точные измерения и детальная диагностика;
-
управление силовыми коммутирующими устройствами;
-
контроль и индикация состояния силовых коммутационных устройств;
-
обмен информацией с централизованной системой управления по коммуникационной сети.
Благодаря принципу модульности легко выполняется расширение возможностей путем добавления дополнительных модулей: связи, вводов/выводов и модуля подключения температурных датчиков.
Устройство контроля и учета электроэнергии
Устройство контроля и учета электроэнергии PowerLogic - это полный модельный ряд измерителей мощности для выбранной конфигурации КРУ. Устройство контроля и учета электроэнергии PowerLogic обладает высокими эксплуатационными характеристиками, оптимальной стоимостью и обеспечивает точные измерения.
Устройство контроля и учета электроэнергии PowerLogic серии 3000/4000 спроектировано для использования в ключевых точках электросети с наиболее чувствительными нагрузками для проведения подробного анализа. С его помощью можно получить данные, необходимые для восстановления нормальных режимов работы электрических сетей. Этот прибор может определять среднюю стоимость электрической энергии, потреблённой в течение указанного периода или в реальном времени.
По желанию Заказчика может быть установлено другое устройство учета и контроля электроэнергии.
Контроль и управление
Ячейки NEX могуг быть легко интегрированы в существующую систему диспетчеризации. Cвязь осуществляется через стандартный протокол связи Modbus. Ячейки NEX также могут быть интегрированны в систему мониторинга электроустановки SMS PowerLogic.


Загрузить документы
Распределительные устройства 10 (6) кВ серии NEX (5.801 Мб) скачать
Главная
Карта сайта







